產品展示

主要技術指標及使用要求
綜合保障車能夠在應急通信現場,主要為工作人員的會議和休息提供必備的基礎設施保障。要求綜合保障車機動性能強,保障能力好,獨立工作能力強,運行成本低、可靠性高、操作簡單、維修方便。
底盤選型
該車底盤選用中國重汽ZZ5186XXYK501GF1,驅動形式4X2;短駕;含導流罩,軸距5800毫米,國六排放標準,是工業和信息化部《車輛生產企業及產品公告》上的車輛。車輛排放滿足北京市尾氣排放標準,并保證能夠在北京地區上牌照。
總體設計思路
綜合保障車選用二類汽車底盤,加裝柴油發電機組、配電系統、防雷及接地保護系統、平衡支撐系統等,為綜合保障系統提供運輸、工作保障。
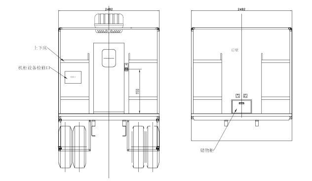
外部布局設計
整車外形尺寸(長×寬×高):10280±20mm×2492mm×3780±20mm。
廂體外部尺寸(長×寬×高):7985 mm×2492 mm×3780 mm。
工作艙內部參考尺寸(長×寬×高):2900 mm×2390 mm×2080 mm。
休息艙內部參考尺寸(長×寬×高):5923 mm×2390 mm×2380 mm。
車輛左、右、后側安裝場地照明燈;車輛底部安裝四點式液壓支撐腿一套;車輛右側安裝登艙門,車尾安裝登頂梯。




內部布局設計





綜合保障車內部分別分為業務區和休息區,中間設置隔斷墻, 保證工作人員在休息時的舒適性更佳。
業務艙配置10人會議桌,2個長排座椅,一臺可供連接投影會議時使用的65寸4K分辨率的電視,一個綜合機柜,一個滅火器,一臺飲水機、水壺等必備生活設施。登艙門內部放置登艙梯,車頂配置2臺頂置式空調,可以滿足設備工作正常要求,所有機架及會議桌強度和剛度能滿足所載設備動靜載荷的要求,設備安裝牢固,在行車時不松動和跌落。
休息艙與業務艙采用隔斷分隔,隔斷上有通道門,2組上下鋪床鋪及床頭柜等設施,休息艙內床鋪尺寸為:長1900,寬700,內頂部采用一臺頂置空調調節休息艙內環境溫度。
車輛廂體裝飾
設備艙內壁選用防靜電掛毯,易清潔,地板選用防靜電地板,易清洗;油機艙采用消音處理、吸音材料,以降低油機噪音;所有內裝飾材料全部采用阻燃和環保材料。
車輛外飾:標識方案根據客戶要求,外觀統一,采用噴繪規定的外標識。
供電系統
供電:整車有市電220V、油機220V、蓄電池等供電方式,由配電箱統一控制,艙內壁電源插座、整體式空調采用220V交流;車內正常照明、場地燈交流DC24V供電,應急照明、調平系統、電動電纜盤采用蓄電池DC24V供電。市電供電電源由電源壁盒進入車內,輸入線路帶避雷保護裝置,經配電箱進行用電分配,油機、蓄電池供電直接進配電箱,配電箱具有過欠壓、漏電、接地告警及止鈴等功能。
照明系統
照明系統由車內照明燈、車內應急燈、場地照明燈等組成。
在各艙室設置頂置車廂專用照明燈,交流供電;照明燈的照度滿足操作和維護設備要求,即照度要求:離地0.8米水平面上100Lx。應急燈、場地照明燈、等輔助照明燈具為24V直流電供電
艙內照明按照操作位照度不小于100lx進行設計
平衡系統
為了增加車輛的整車穩定性能、便于車輛在儲存狀態下對車輛輪胎的卸載,在原底盤上安裝四只電動支撐腿,分別安裝于車輛的中前、后位置。一鍵可完成伸展、支撐、調平、收起的全部操作,也可獨立控制每條支腿的操作;故障狀態下,也可應急手動收放支腿;單腿支撐能力6噸,滿足整車支撐需求。當支腿沒有收起時,有告警系統提示駕駛員不要發動汽車,以免造成事故。
支腿的電源不使用車輛自帶的蓄電池供電,單獨配2塊給蓄電池供電。
另外配備4塊墊木,滿足電動支撐腿的支撐。
空調系統
整車配置2臺專用車載空調,會議區和休息區各一臺。型號為ZWD-40V,單臺制冷量4000W,室內噪音不大于58dB(A)??照{系統具有冷暖、換風、濾塵等基本功能。
工作溫度為-40~55℃,廂體內部溫度控制在16℃~28℃之間,相對濕度控制在10%~75%(溫度≤30℃,不得凝露)。溫度變化不大于2℃/分鐘,且具備斷電自啟動功能。
防雷接地系統
(1) 防雷接地系統的設計應以保證人員安全和設備正常運行為目的,采用車體地、測量地采用同一組接地體的聯合接地方式。具體設計應按照YD5098-2005《通信局(站)防雷接地設計規范》的有關規定。
(2) 在車廂外壁上需留有接地栓,配置接地棒,工作時接地棒間距不小于10米。
(3) 電涌保護(SPD)的沖擊通流容量大于標稱放電電流的2.5倍。


18612540555





